Используя данный сайт, Вы даете согласие на использование файлов Cookie
.


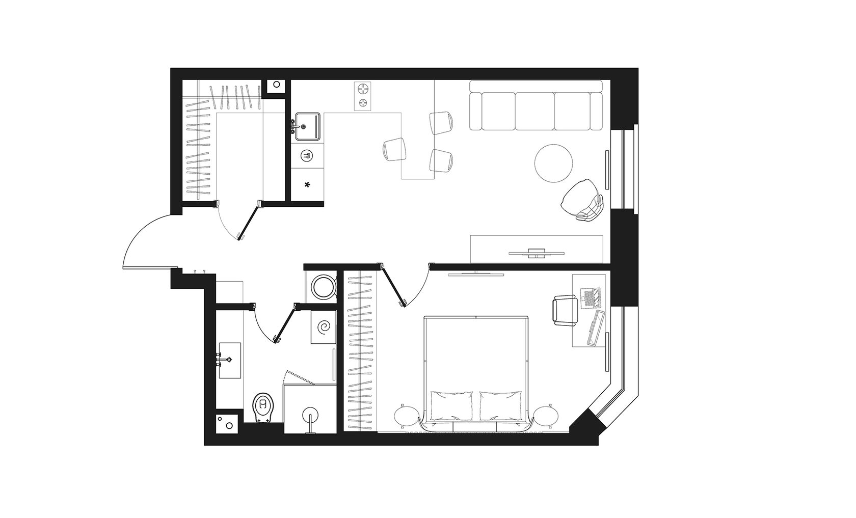
Квартира в ЖК
"Биг тайм"
● Концепция дизайна и 3D-визуализация;
● Рабочая документация;
● Подбор материалов и мебели;
● Авторский надзор.
48 м2
Москва
ПОЛУЧИТЕ БЕСПЛАТНУЮ
КОНСУЛЬТАЦИЮ УЖЕ СЕГОДНЯ
Нажимая на кнопку, вы даете согласие на обработку своих персональных данных
ПОЛУЧИТЕ БЕСПЛАТНУЮ
КОНСУЛЬТАЦИЮ УЖЕ СЕГОДНЯ
Нажимая на кнопку, вы даете согласие на обработку своих персональных данных
Мы уже почти 14 лет СЛЫШИМ КАЖДУЮ ИДЕЮ наших заказчиков
и помогаем Доводить Мечту ДО РЕАЛИЗАЦИИ
Илья Лученков и Екатерина Десятскова
Главные Архитекторы Проекта
С НАМИ — ПРОСТО!
ВАМ НЕ НУЖНО ДУМАТЬ, КАК ОБЪЯСНИТЬ, ЧТО ВЫ ХОТИТЕ ОТ ИНТЕРЬЕРА
Мы поможем сформулировать Ваш запрос на старте и будем тщательно уточнять его в процессе.

Мы справимся, даже если Вы еще не до конца осознаете свои предпочтения.
Ваше уникальное видение — наш приоритет
Все что мы делаем — мы делаем для Вас!

Мы исходим из Ваших личных представлений о красоте и комфорте, а так же из поставленных Вами задач, бюджета и сроков.
ПОЧЕМУ С НАМИ — ЛУЧШЕ
ДИЗАЙН-ПРОЕКТ
• 01
Грамотное планировочное решение - База, на которой строится все остальное.
1200 ₽/м²
МИНИ


План обмеров;
План демонтажа;
План монтажа перегородок;
План расстановки мебели, техники и сантехники

● План раскладки напольных покрытий;
План потолков;
План расстановки осветительных приборов;
Схема групп включения света с расстановкой выключателей;
План расстановки электрики;
План отделки стен;
Развертки стен с мебелью;
Ведомость отделки стен;
3Д-визуализация (колористическое и стилистическое решения).
ЭКСПРЕСС
Проект без визуализации


(Полный комплект чертежей для стройки )


3150 ₽/м²

● План обмеров;
● План демонтажа;
План монтажа перегородок;
План расстановки мебели, техники и сантехники;
План раскладки напольных покрытий;
План потолков;
План расстановки осветительных приборов;
Схема групп включения света с расстановкой выключателей;
План расстановки электрики;
План отделки стен;
Развертки стен с мебелью;
Ведомость отделки стен

3Д-визуализация (колористическое и стилистическое решения).
ПОЛНЫЙ
Концепция дизайна (визуализация) + полный комплект рабочих чертежей.
4950 ₽/м²

План обмеров;
План демонтажа;
План монтажа перегородок;
План расстановки мебели, техники и сантехники;
План раскладки напольных покрытий;
План потолков;
План расстановки осветительных приборов;
Схема групп включения света с расстановкой выключателей;
План расстановки электрики;
План отделки стен;
Развертки стен с мебелью;
Ведомость отделки стен;
3Д-визуализация (колористическое и стилистическое решения).
НАША РАБОТА — не просто
КРАСИВАЯ картинка
Мы не только эстеты, но и эксперты в вопросах:
  • нормативов проектирования;
  • технологий строительства;
  • рынка материалов и мебели;
  • разработки рабочей документации.
КАК МЫ РАЗ ЗА РАЗОМ ДОБИВАЕМСЯ ВОСХИТИТЕЛЬНОГО РЕЗУЛЬТАТА?
Красота — это только верхушка айсберга!
грамотная планировка — это база для комфортной жизни
за 14 лет мы прошли через все возможные ситуации в реализации интерьеров

  • Красивая картинка не отражает качество планировки. Но в повседневной жизни Вы будете чувствовать это качество на себе постоянно;

  • К плохой планировке невозможно привыкнуть. Допущенные ошибки будут всегда будут вызывать горечь разочарования.

  • Именно качество планировки в первую очередь определяет квалификацию архитектора.
В нашем деле таланта не достаточно. Нужен опыт!
— Опыт позволяет нам видеть картину в целом и укладываться в необходимые сроки и бюджет.
— Мы работаем с 2010 года и набили много полезных шишек, чтобы безопасно провести Вас через процесс ремонта;
КОМАНДА ПРОФЕССИОНАЛОВ
Главный Архитектор Проекта
ЕКАТЕРИНА ДЕСЯТСКОВА
МЫ ЗНАЕМ КАК ПОЛУЧИТЬ ОТЛИЧНЫЙ РЕЗУЛЬТАТ ОТ КАЖДОГО, КТО ЗАДЕЙСТВОВАН В РЕАЛИЗАЦИИ ВАШЕГО ИНТЕРЬЕРА
Главный Архитектор Проекта
ИЛЬЯ ЛУЧЕНКОВ
Дизайнер Интерьера
ОЛЬГА МАРКИНА
АЛЕКСАНДР НЕСТЕРОВ
Визуализатор
ПОЛУЧИТЕ БЕСПЛАТНУЮ
КОНСУЛЬТАЦИЮ УЖЕ СЕГОДНЯ
Нажимая на кнопку, вы даете согласие на обработку своих персональных данных
Ждем вас в нашем офисе
Москва, Потаповский пер., 5с1, офис №314
Info@ldstudio.ru
Заполните короткий тест, и мы поможем грамотно
сформулировать запрос и рассчитаем стоимость проекта